Skip to content
uland.com.vn
  • Home
  • Tin tức
  • Nhà mẫu
  • Kiến thức
uland.com.vn
  • Tin tức

TOP 40+ bản vẽ thiết kế nội thất nhà phố được KTS đánh giá cao nhất

By seo Tháng 1 10, 2025 0
Bản vẽ thiết kế nội thất nhà phố 3 tầng hiện đại
Table of Contents

Thiết kế nội thất nhà phố đang là xu hướng được nhiều gia chủ quan tâm, từ những căn nhà phố rộng rãi đến việc trang trí những không gian nhỏ xinh. Việc tìm kiếm các bản vẽ thiết kế nội thất nhà phố đẹp và phù hợp với nhu cầu ngày càng tăng cao. Nắm bắt được xu hướng này, Uland xin giới thiệu đến bạn đọc hơn 40 bản vẽ thiết kế nội thất nhà phố được các kiến trúc sư đánh giá cao, hứa hẹn mang đến nguồn cảm hứng bất tận cho ngôi nhà của bạn.

Bản vẽ thiết kế nội thất nhà phố không chỉ đơn thuần là sắp xếp đồ đạc mà còn là nghệ thuật kiến tạo không gian sống hoàn hảo, thể hiện cá tính và gu thẩm mỹ của gia chủ. Hãy cùng Uland khám phá những mẫu thiết kế ấn tượng và tìm kiếm ý tưởng cho ngôi nhà mơ ước của bạn!

Bản Vẽ Thiết Kế Nội Thất Nhà Phố 3 Tầng

Những bản vẽ thiết kế nội thất nhà phố 3 tầng dưới đây mang đến sự đa dạng về phong cách, từ sang trọng, hiện đại đến truyền thống, ấm cúng, phù hợp với nhiều thế hệ trong gia đình. Cách bố trí nội thất thông minh, khoa học giúp tối ưu không gian sống, mang lại sự rộng rãi và thoải mái cho mọi thành viên.

Bản vẽ thiết kế nội thất nhà phố 3 tầng hiện đạiBản vẽ thiết kế nội thất nhà phố 3 tầng hiện đại

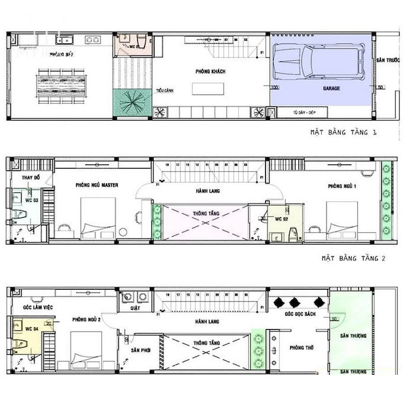
Mặt bằng nội thất nhà phố 3 tầngMặt bằng nội thất nhà phố 3 tầng

Thiết kế phòng khách nhà phố 3 tầngThiết kế phòng khách nhà phố 3 tầng

Không gian bếp nhà phố 3 tầngKhông gian bếp nhà phố 3 tầng

Phòng ngủ master nhà phố 3 tầngPhòng ngủ master nhà phố 3 tầng

Thiết kế phòng tắm nhà phố 3 tầngThiết kế phòng tắm nhà phố 3 tầng

Bản vẽ chi tiết nội thất nhà phố 3 tầngBản vẽ chi tiết nội thất nhà phố 3 tầng

Nội thất phòng khách sang trọngNội thất phòng khách sang trọng

Thiết kế phòng bếp hiện đạiThiết kế phòng bếp hiện đại

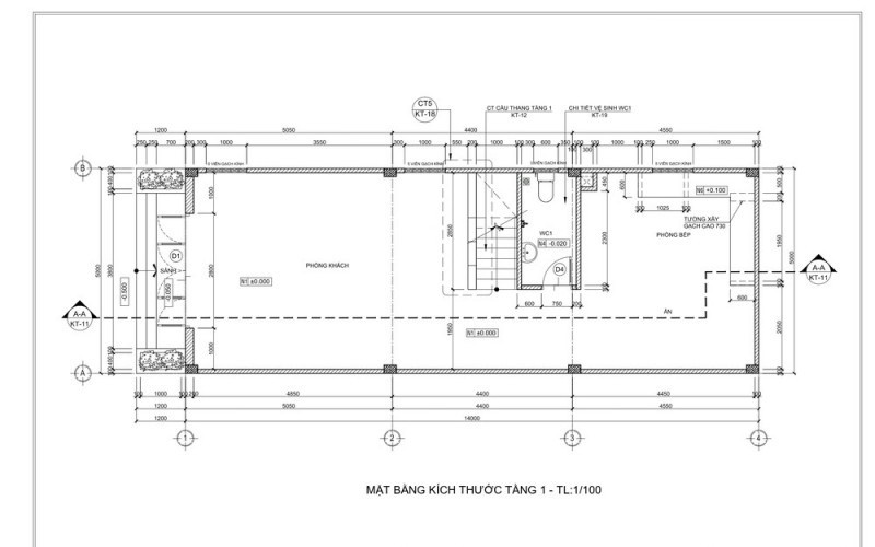
Bản vẽ kỹ thuật nội thất nhà phố 3 tầngBản vẽ kỹ thuật nội thất nhà phố 3 tầng

Bản Vẽ Thiết Kế Nội Thất Nhà Phố 1 Trệt 1 Lầu Đẹp

Nhà phố 1 trệt 1 lầu là lựa chọn phổ biến cho các gia đình trẻ hoặc những người sống độc thân. Với diện tích hạn chế, việc bố trí nội thất cần được tính toán kỹ lưỡng để tạo nên không gian sống vừa tiện nghi, hiện đại vừa tối ưu công năng sử dụng.

Bản vẽ mặt bằng nhà phố 1 trệt 1 lầuBản vẽ mặt bằng nhà phố 1 trệt 1 lầu

Thiết kế phòng khách nhà phố 1 trệt 1 lầuThiết kế phòng khách nhà phố 1 trệt 1 lầu

Không gian bếp nhà phố 1 trệt 1 lầuKhông gian bếp nhà phố 1 trệt 1 lầu

Phòng ngủ nhà phố 1 trệt 1 lầuPhòng ngủ nhà phố 1 trệt 1 lầu

Bản Vẽ Thiết Kế Nội Thất Nhà Phố Liền Kề

Thiết kế nội thất nhà phố liền kề đòi hỏi sự khéo léo trong việc tận dụng không gian và tạo điểm nhấn riêng. Những bản vẽ dưới đây thể hiện sự hài hòa trong bố cục, chi tiết và tận dụng tối đa ánh sáng tự nhiên, mang đến không gian sống thoáng đãng và gần gũi với thiên nhiên.

Mặt bằng nội thất nhà phố liền kềMặt bằng nội thất nhà phố liền kề

Thiết kế phòng khách nhà phố liền kềThiết kế phòng khách nhà phố liền kề

Không gian bếp nhà phố liền kềKhông gian bếp nhà phố liền kề

Phòng ngủ nhà phố liền kềPhòng ngủ nhà phố liền kề

Thiết kế phòng tắm nhà phố liền kềThiết kế phòng tắm nhà phố liền kề

Bản vẽ chi tiết nội thất nhà phố liền kềBản vẽ chi tiết nội thất nhà phố liền kề

Bản Vẽ Thiết Kế Nội Thất Nhà Phố Nhỏ Đẹp

Đối với nhà phố có diện tích nhỏ, việc thiết kế nội thất càng trở nên quan trọng hơn bao giờ hết. Mỗi chi tiết, mỗi món đồ nội thất đều cần được lựa chọn và bố trí một cách tỉ mỉ để tối ưu không gian và mang lại sự tiện nghi cho gia chủ.

Mặt bằng nội thất nhà phố nhỏMặt bằng nội thất nhà phố nhỏ

Thiết kế phòng khách nhà phố nhỏThiết kế phòng khách nhà phố nhỏ

Không gian bếp nhà phố nhỏKhông gian bếp nhà phố nhỏ

Phòng ngủ nhà phố nhỏPhòng ngủ nhà phố nhỏ

Thiết kế phòng tắm nhà phố nhỏThiết kế phòng tắm nhà phố nhỏ

Bản vẽ chi tiết nội thất nhà phố nhỏBản vẽ chi tiết nội thất nhà phố nhỏ

Uland – Nơi Cung Cấp Thông Tin Đầu Tư Bất Động Sản 4.0

Uland.vn là nền tảng cung cấp tin tức, kiến thức và thông tin mới nhất về đầu tư bất động sản trong kỷ nguyên số. Chúng tôi mang đến cho bạn những phân tích thị trường chuyên sâu, cơ hội đầu tư tiềm năng và các chiến lược quản lý tài chính thông minh. Bên cạnh đó, Uland còn cung cấp đa dạng các dịch vụ liên quan đến bất động sản, giúp bạn đưa ra quyết định đầu tư hiệu quả và an toàn. Liên hệ ngay với Uland qua hotline 0905 678 123 hoặc email [email protected] để được tư vấn và hỗ trợ tốt nhất. Địa chỉ: Số 10, Đường Phạm Ngọc Thạch, Phường 6, Quận 3, TP Hồ Chí Minh, Việt Nam. Website: https://uland.com.vn.

Share
facebookShare on FacebooktwitterShare on TwitterpinterestShare on Pinterest
linkedinShare on LinkedinvkShare on VkredditShare on ReddittumblrShare on TumblrviadeoShare on ViadeobufferShare on BufferpocketShare on PocketwhatsappShare on WhatsappviberShare on ViberemailShare on EmailskypeShare on SkypediggShare on DiggmyspaceShare on MyspacebloggerShare on Blogger YahooMailShare on Yahoo mailtelegramShare on TelegramMessengerShare on Facebook Messenger gmailShare on GmailamazonShare on AmazonSMSShare on SMS
Post navigation
Previous post

Kích thước cầu thang đúng phong thủy giúp gia chủ rước lộc vào nhà

Next post

Kinh nghiệm xây nhà phố kết hợp kinh doanh hiệu quả

seo

seo

Related Posts

Categories Tin tức TOP 40+ bản vẽ thiết kế nội thất nhà phố được KTS đánh giá cao nhất

Nạp tiền Vin777 dễ dàng – Giao dịch an toàn chỉ vài bước

Categories Tin tức TOP 40+ bản vẽ thiết kế nội thất nhà phố được KTS đánh giá cao nhất

Hướng dẫn đăng ký Rongho99 nhận thưởng hấp dẫn cho người mới

Bí Kíp Cá Cược Bóng Rổ Cho Người Mới Bắt Đầu

Leave a Comment Hủy

Xem thêm

Categories Tin tức Trả lời nghi vấn bán hàng tại dự án Glory Heights Vinhomes

Trả lời nghi vấn bán hàng tại dự án Glory Heights Vinhomes

Tháng 2 28, 2025

Tiến độ thanh toán dự án De La Sol: Linh hoạt dòng tiền, sinh lời ngay khi nhận nhà

Tháng 2 28, 2025

Không cần chờ ‘sóng’, chỉ cần có đủ 5 yếu tố này căn hộ của bạn nhất định tăng giá!

Tháng 2 28, 2025

Kinh nghiệm thiết kế cầu thang đẹp cho nhà phố hiện đại

Tháng 1 10, 2025

Chính sách vay mua nhà ở xã hội: Cơ hội và điều kiện cho người thu nhập thấp

Tháng 3 8, 2025

Đất nền dự án là gì? Kinh nghiệm khi mua bán đất nền dự án

Tháng 2 15, 2025

Bảng chi phí nhà phố khung thép 2 tầng ĐẦY ĐỦ CÁC HẠNG MỤC

Tháng 1 10, 2025

Giới thiệu

Uland.vn cung cấp các tin tức, kiến thức và thông tin mới nhất về đầu tư bất động sản trong kỷ nguyên 4.0. Đưa ra các phân tích thị trường, cơ hội đầu tư và các chiến lược quản lý tài chính thông minh trong lĩnh vực bất động sản.

79king, mb66, 33win, ae888, 789win, 8kbet, hi88, jun88, u888, ee88, vin88, sv388, k8cc, s666, vin88, 23win, pg88, xin88, fun88, vin88, nhà cái uy tín, soi kèo nhà cái, yo88, typhu88, tài xỉu online, xocdia88, sanclub, vin777, kubet11, b52, 123b, hb88, az888, ku68, 888b, bet88, loto188, win55, xoso66, vb777, 12bet, 999bet, 123win, good88, keonhacai5, go789, kubet77, qh88, iwinclub, mksport, win456, 78win, topzo, 77ball, ab77, abc8, b52club, fo88, kubet77, i5bet, cado88, kingbet86, 33bet, azbet88, h3bet, pq88, ysb66, letou, ibet68, vx88, km1888b, rongho99, 99vina,

Liên hệ

  • Phone: 0905 678 123
  • Email: [email protected]
  • Địa chỉ: Số 10, Đường Phạm Ngọc Thạch, Phường 6, Quận 3, TP Hồ Chí Minh, Việt Nam
Copyright © 2025 uland.com.vn
Danh mục
  • Home
  • Tin tức
  • Nhà mẫu
  • Kiến thức