Skip to content
uland.com.vn
  • Home
  • Tin tức
  • Nhà mẫu
  • Kiến thức
uland.com.vn
  • Tin tức

Bản vẽ nhà phố 2 tầng đầy đủ & chi tiết nhất

By seo Tháng 1 10, 2025 0
alt text: Bản vẽ mặt bằng tầng trệt của một ngôi nhà phố 2 tầng
Table of Contents

Bản vẽ nhà phố 2 tầng đang là lựa chọn hàng đầu của nhiều gia đình Việt hiện nay. Với diện tích đất hạn chế ở đô thị, thiết kế 2 tầng giúp tối ưu không gian sống, mang lại sự tiện nghi và thoải mái cho cả gia đình. Bài viết này sẽ cung cấp những thông tin chi tiết về bản vẽ nhà phố 2 tầng, từ thiết kế cơ bản đến những mẫu nhà hoàn chỉnh, giúp bạn hình dung rõ hơn về ngôi nhà mơ ước của mình.

alt text: Bản vẽ mặt bằng tầng trệt của một ngôi nhà phố 2 tầngalt text: Bản vẽ mặt bằng tầng trệt của một ngôi nhà phố 2 tầng

Tầm Quan Trọng Của Bản Vẽ Thiết Kế Kiến Trúc Nhà Phố

Bản vẽ thiết kế kiến trúc là bước nền tảng, quyết định đến sự thành công của một công trình xây dựng. Nó giống như khung xương của ngôi nhà, định hình tổng thể, kích thước, kiểu dáng và cách bố trí không gian. Một bản vẽ chi tiết sẽ giúp gia chủ:

  • Hình dung rõ ràng về ngôi nhà: Từ mặt bằng, bố trí phòng ốc đến hình ảnh 3D, bản vẽ giúp bạn hình dung rõ ràng về ngôi nhà tương lai, tránh những sai sót không mong muốn.
  • Tối ưu diện tích sử dụng: Bản vẽ giúp tận dụng tối đa diện tích đất, bố trí công năng hợp lý, tạo không gian sống thoải mái và tiện nghi.
  • Kiểm soát chi phí xây dựng: Có bản vẽ chi tiết, bạn sẽ dễ dàng dự toán chi phí, tránh phát sinh ngoài ý muốn trong quá trình thi công.
  • Quản lý tiến độ thi công: Bản vẽ là cơ sở để giám sát quá trình thi công, đảm bảo công trình đúng tiến độ và chất lượng.
  • Dễ dàng sửa chữa, cải tạo: Khi cần sửa chữa hoặc cải tạo nhà, bản vẽ sẽ giúp bạn thực hiện một cách nhanh chóng và hiệu quả.

Phân Tích Chi Tiết Bản Vẽ Nhà Phố 2 Tầng

Bản Vẽ Thiết Kế Nhà 2 Tầng Cơ Bản

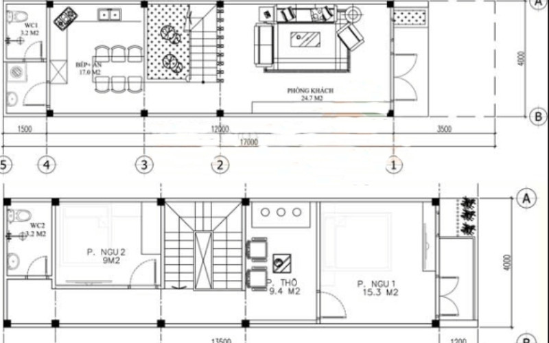
Mặt Bằng Tầng Trệt

Tầng trệt thường được thiết kế bao gồm:

  • Gara ô tô/xe máy: Thay vì xây dựng tầng hầm tốn kém, gara để xe ở tầng trệt là giải pháp tiết kiệm diện tích và chi phí.
  • Phòng khách: Không gian phòng khách thường được thiết kế thông thoáng, liên thông với khu vực bếp ăn tạo cảm giác rộng rãi.
  • Bếp ăn: Khu vực bếp ăn được bố trí liền kề phòng khách, thuận tiện cho việc sinh hoạt và giao tiếp giữa các thành viên trong gia đình.
  • Phòng ngủ: Một phòng ngủ thường được bố trí ở tầng trệt, phù hợp cho người lớn tuổi hoặc khách đến chơi nhà.
  • WC: Nhà vệ sinh chung được đặt ở vị trí thuận tiện cho cả gia đình sử dụng.

alt text: Bản vẽ mặt bằng tầng 2 của một ngôi nhà phố 2 tầngalt text: Bản vẽ mặt bằng tầng 2 của một ngôi nhà phố 2 tầng

Mặt Bằng Tầng 2

Tầng 2 thường được thiết kế bao gồm:

  • Phòng ngủ: Hai phòng ngủ được bố trí ở tầng 2, đảm bảo sự riêng tư cho các thành viên trong gia đình. Phòng ngủ master có thể thiết kế rộng rãi hơn, kèm theo ban công và phòng thay đồ.
  • WC: Mỗi phòng ngủ có thể có WC riêng hoặc thiết kế WC chung cho cả tầng.
  • Phòng làm việc/học tập: Một không gian yên tĩnh dành cho làm việc hoặc học tập cũng thường được bố trí ở tầng 2.

Bản Vẽ Thiết Kế Nhà 2 Tầng Hoàn Chỉnh Diện Tích 5x20m

Mẫu nhà phố 2 tầng 5x20m là một ví dụ điển hình cho việc tối ưu không gian sống trên diện tích đất hạn chế.

Mặt Bằng Tầng Trệt

  • Sân trước: Sân trước có thể được thiết kế làm khu vực để xe hoặc tiểu cảnh sân vườn.
  • Phòng khách: Phòng khách thiết kế mở, liên thông với phòng bếp tạo cảm giác rộng rãi.
  • Bếp + Phòng ăn: Khu vực bếp và phòng ăn được bố trí liền kề, thuận tiện cho việc nấu nướng và ăn uống.
  • Phòng ngủ: Một phòng ngủ được bố trí ở tầng trệt, tận dụng ánh sáng từ giếng trời.
  • WC: Nhà vệ sinh chung được đặt dưới gầm cầu thang, tiết kiệm diện tích.

alt text: Bản vẽ mặt bằng tầng trệt của một ngôi nhà phố 2 tầng có kích thước 5x20malt text: Bản vẽ mặt bằng tầng trệt của một ngôi nhà phố 2 tầng có kích thước 5x20m

Mặt Bằng Tầng 1 (Lầu 1)

  • Hai phòng ngủ: Hai phòng ngủ được bố trí ở tầng 1, mỗi phòng đều có cửa sổ đón ánh sáng tự nhiên.
  • WC: Nhà vệ sinh chung được đặt giữa hai phòng ngủ, thuận tiện cho việc sử dụng.

Uland: Đồng Hành Cùng Bạn Xây Dựng Tổ Ấm

Uland là website chuyên cung cấp tin tức, kiến thức và thông tin mới nhất về đầu tư bất động sản trong kỷ nguyên 4.0. Chúng tôi mang đến cho bạn những phân tích thị trường, cơ hội đầu tư và chiến lược quản lý tài chính thông minh trong lĩnh vực bất động sản. Bên cạnh đó, Uland cũng cung cấp các bài viết tư vấn về thiết kế, xây dựng nhà ở, giúp bạn hiện thực hóa ngôi nhà mơ ước.

Với đội ngũ chuyên gia giàu kinh nghiệm, Uland cam kết mang đến cho bạn những thông tin chính xác, hữu ích và đáng tin cậy. Hãy truy cập website Uland.com.vn hoặc liên hệ hotline 0905 678 123 để được tư vấn miễn phí. Địa chỉ văn phòng: Số 10, Đường Phạm Ngọc Thạch, Phường 6, Quận 3, TP Hồ Chí Minh, Việt Nam. Email: [email protected].

Share
facebookShare on FacebooktwitterShare on TwitterpinterestShare on Pinterest
linkedinShare on LinkedinvkShare on VkredditShare on ReddittumblrShare on TumblrviadeoShare on ViadeobufferShare on BufferpocketShare on PocketwhatsappShare on WhatsappviberShare on ViberemailShare on EmailskypeShare on SkypediggShare on DiggmyspaceShare on MyspacebloggerShare on Blogger YahooMailShare on Yahoo mailtelegramShare on TelegramMessengerShare on Facebook Messenger gmailShare on GmailamazonShare on AmazonSMSShare on SMS
Post navigation
Previous post

Kinh nghiệm thiết kế cầu thang đẹp cho nhà phố hiện đại

Next post

Bảng chi phí xây nhà phố khung thép 3 tầng CHI TIẾT

seo

seo

Related Posts

Categories Tin tức Bản vẽ nhà phố 2 tầng đầy đủ & chi tiết nhất

Nạp tiền Vin777 dễ dàng – Giao dịch an toàn chỉ vài bước

Categories Tin tức Bản vẽ nhà phố 2 tầng đầy đủ & chi tiết nhất

Hướng dẫn đăng ký Rongho99 nhận thưởng hấp dẫn cho người mới

Bí Kíp Cá Cược Bóng Rổ Cho Người Mới Bắt Đầu

Leave a Comment Hủy

Xem thêm

Categories Tin tức Bí kíp chọn mua được 1 căn shophouse, nuôi 3 thế hệ!

Bí kíp chọn mua được 1 căn shophouse, nuôi 3 thế hệ!

Tháng 2 28, 2025

Hàng trăm nghìn tỷ đồng đổ vào đầu tư bất động sản nghỉ dưỡng Hội An

Tháng 3 3, 2025

Những thông tin quan trọng cần lưu ý khi làm hợp đồng xây dựng nhà ở

Tháng 2 28, 2025

Tiện ích dự án MT Eastmark City có những gì?

Tháng 2 15, 2025

Xu hướng đầu tư vào phân khúc căn hộ giá rẻ tại TP.HCM

Tháng 3 8, 2025

Phong cách thiết kế nội thất hiện đại là gì?

Tháng 1 10, 2025

Tân Á Đại Thành hợp tác cùng Daewoo E&C tại Meyhomes Capital

Tháng 2 28, 2025

Giới thiệu

Uland.vn cung cấp các tin tức, kiến thức và thông tin mới nhất về đầu tư bất động sản trong kỷ nguyên 4.0. Đưa ra các phân tích thị trường, cơ hội đầu tư và các chiến lược quản lý tài chính thông minh trong lĩnh vực bất động sản.

k8cc, sv388, s666, vin88, pg88, xin88, 23win, fun88, nhà cái uy tín, soi kèo nhà cái, kubet11, vin777, letou, pq88, ibet68, kingbet86, 33bet, h3bet, azbet88, ysb66, vx88, km1888b, rongho99, w88, yo88, tài xỉu online, bet88, loto188, vb777, 12bet, 999bet, 123win, net79, 79king, good88, keonhacai5, 888b, ku68, go789, kubet77, i5bet, ae888, 78win, az888, hb88, topzo, 77ball, ab77, locla88, mb66, qh88, 123b, b52, iwinclub, mksport, win456, cado888, 789win, ee88, sanclub, xocdia88, typhu88, 99vina, 8kbet, hi88, jun88, u888, abc8, win55, xoso66, b52club, fo88, kubet77, Tin68, 33win,

Liên hệ

  • Phone: 0905 678 123
  • Email: [email protected]
  • Địa chỉ: Số 10, Đường Phạm Ngọc Thạch, Phường 6, Quận 3, TP Hồ Chí Minh, Việt Nam
Copyright © 2025 uland.com.vn
Danh mục
  • Home
  • Tin tức
  • Nhà mẫu
  • Kiến thức