Skip to content
uland.com.vn
  • Home
  • Tin tức
  • Nhà mẫu
  • Kiến thức
uland.com.vn
  • Tin tức

Căn hộ Dual Key: Bí quyết cho thuê lợi nhuận cao của người Singapore

By seo Tháng 2 28, 2025 0
Căn hộ Dual Key: Bí quyết cho thuê lợi nhuận cao của người Singapore
Table of Contents

Căn hộ dual key đang trở thành xu hướng đầu tư bất động sản đầy tiềm năng tại Việt Nam, lấy cảm hứng từ mô hình thành công tại Singapore. Loại hình này không chỉ cung cấp một không gian sống linh hoạt mà còn hứa hẹn một nguồn thu nhập ổn định cho các nhà đầu tư. Nếu bạn đang quan tâm đến căn hộ dual key, bài viết này sẽ giúp bạn có cái nhìn rõ hơn về ưu điểm, nhược điểm cũng như bố cục của loại hình căn hộ này.

Căn hộ dual key là gì? Đây là loại căn hộ được thiết kế với hai không gian sống riêng biệt, mỗi không gian có đầy đủ tiện nghi như phòng khách, bếp và phòng ngủ, nhưng vẫn chia sẻ cùng một sảnh vào. Điều này giúp các thành viên trong gia đình hoặc người thuê giữ được sự riêng tư cần thiết.

Căn hộ Dual Key: Bí quyết cho thuê lợi nhuận cao của người SingaporeCăn hộ dual key nhìn từ sảnh chính

Ưu điểm và nhược điểm của căn hộ dual key

Ưu điểm của căn hộ dual key

1. Thích hợp cho gia đình nhiều thế hệ

Căn hộ dual key là lựa chọn xuất sắc cho các gia đình đa thế hệ muốn sống gần nhau nhưng vẫn cần không gian riêng tư. Với thiết kế này, ông bà, cha mẹ và con cháu có thể cùng chung sống mà không gặp khó khăn trong việc bảo vệ không gian riêng của từng thế hệ.

Căn hộ Dual Key: Bí quyết cho thuê lợi nhuận cao của người SingaporeCăn hộ dual key cho gia đình nhiều thế hệ

Tại Việt Nam, mô hình này ngày càng được ưa chuộng khi dân số già hóa và nhu cầu về nhà ở tăng cao.

2. Lợi suất cho thuê cao hơn căn hộ thông thường

Căn hộ dual key chưa phổ biến tại Việt Nam, nên chưa có nhiều số liệu cụ thể về lợi suất cho thuê. Tuy nhiên, tại Singapore, căn hộ dual key mang đến lợi suất cho thuê cao hơn hẳn so với các loại căn hộ thông thường. Lợi suất cho thuê căn hộ trung bình tại Singapore dao động từ 2 – 3%, trong khi căn hộ dual key thường đạt từ 3,5% trở lên.

Căn hộ Dual Key: Bí quyết cho thuê lợi nhuận cao của người SingaporeLợi suất cho thuê căn hộ dual key tại Singapore

Để minh họa, tại khu căn hộ 8 Riversuites, một căn hộ 3PN thông thường cho thuê từ 2.500 đến 3.500 USD mỗi tháng, trong khi cùng diện tích nhưng là loại dual key, tổng thu nhập từ việc cho thuê có thể lên tới 5.000 USD mỗi tháng.

Loại căn hộ Giá mua vào Giá cho thuê Lợi suất
3PN thông thường 1.400.000 USD 3.000 USD 2,57%
3PN dual key 1.550.000 USD 4.450 USD 3,45%

3. Tính linh hoạt trong sử dụng không gian

Một trong những điểm nổi bật của căn hộ dual key là khả năng thay đổi công năng sử dụng linh hoạt. Bạn có thể thuê toàn bộ không gian, hoặc chỉ ở trong một phần và cho thuê phần còn lại, phù hợp với điều kiện tài chính và nhu cầu của từng thời điểm.

Căn hộ Dual Key: Bí quyết cho thuê lợi nhuận cao của người SingaporeLinh hoạt trong sử dụng không gian

4. Lợi thế về thuế tài sản

Tại Singapore, việc mua căn hộ dual key còn mang lại lợi ích về thuế. Khi đầu tư vào loại hình này, bạn không phải đóng thuế cho căn nhà thứ hai, giúp tiết kiệm chi phí đầu tư.

Nhược điểm của căn hộ dual key

1. Vấn đề về sự riêng tư

Dù căn hộ dual key có thiết kế riêng biệt, nhưng những người sống cùng trong căn hộ vẫn có thể cảm thấy không thoải mái khi có người thuê ở gần. Điều này có thể tạo ra sự phiền phức cho những ai yêu cầu tính riêng tư cao hơn.

2. Chưa phổ biến tại thị trường Việt Nam

Loại hình căn hộ dual key vẫn còn mới mẻ tại Việt Nam, vì vậy nhiều nhà đầu tư vẫn chưa dám “xuống tiền”. Các dự án căn hộ như De La Sol ở Quận 4, TP.HCM đang dần thu hút sự quan tâm của thị trường, nhưng cần thời gian để người tiêu dùng làm quen.

Căn hộ Dual Key: Bí quyết cho thuê lợi nhuận cao của người SingaporeDự án căn hộ De La Sol

Mặt bằng điển hình của các căn hộ dual key

Căn hộ dual key 2 phòng ngủ

Căn hộ Dual Key: Bí quyết cho thuê lợi nhuận cao của người SingaporeCăn hộ dual key 2 phòng ngủ

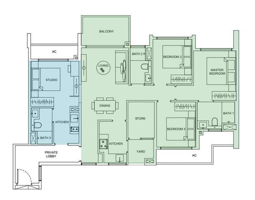
Căn hộ dual key, trio key 3 phòng ngủ

Căn hộ Dual Key: Bí quyết cho thuê lợi nhuận cao của người SingaporeCăn hộ dual key 3 phòng ngủ

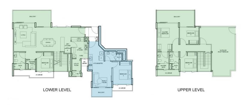
Căn hộ dual key 4 phòng ngủ

Căn hộ Dual Key: Bí quyết cho thuê lợi nhuận cao của người SingaporeCăn hộ dual key 4 phòng ngủ

Căn hộ dual key 5 phòng ngủ

Căn hộ Dual Key: Bí quyết cho thuê lợi nhuận cao của người SingaporeCăn hộ dual key 5 phòng ngủ

Khi xem xét đầu tư vào căn hộ dual key, bạn không chỉ có được không gian sống linh hoạt mà còn mở ra cơ hội thu lợi nhuận hấp dẫn. Đừng bỏ lỡ cơ hội đầu tư vào loại hình căn hộ tiềm năng này. Hãy truy cập ngay uland.com.vn để tìm hiểu thêm về các dự án căn hộ này!

Share
facebookShare on FacebooktwitterShare on TwitterpinterestShare on Pinterest
linkedinShare on LinkedinvkShare on VkredditShare on ReddittumblrShare on TumblrviadeoShare on ViadeobufferShare on BufferpocketShare on PocketwhatsappShare on WhatsappviberShare on ViberemailShare on EmailskypeShare on SkypediggShare on DiggmyspaceShare on MyspacebloggerShare on Blogger YahooMailShare on Yahoo mailtelegramShare on TelegramMessengerShare on Facebook Messenger gmailShare on GmailamazonShare on AmazonSMSShare on SMS
Post navigation
Previous post

Quy hoạch đất ở cao tầng là gì? Mua rồi có đòi tiền được không?

Next post

Diện tích đất tối thiểu để được cấp sổ đỏ và tách thửa tại TPHCM

seo

seo

Related Posts

Categories Tin tức Căn hộ Dual Key: Bí quyết cho thuê lợi nhuận cao của người Singapore

Nạp tiền Vin777 dễ dàng – Giao dịch an toàn chỉ vài bước

Categories Tin tức Căn hộ Dual Key: Bí quyết cho thuê lợi nhuận cao của người Singapore

Hướng dẫn đăng ký Rongho99 nhận thưởng hấp dẫn cho người mới

Bí Kíp Cá Cược Bóng Rổ Cho Người Mới Bắt Đầu

Leave a Comment Hủy

Xem thêm

Categories Tin tức Đầu tư khu công nghiệp Nam Tân Tập (tỉnh Long An) hơn 2.590 tỷ

Đầu tư khu công nghiệp Nam Tân Tập (tỉnh Long An) hơn 2.590 tỷ

Tháng 2 28, 2025

Khi nào được cấp sổ đỏ, phân biệt khác nhau giữa sổ hồng và sổ đỏ

Tháng 2 28, 2025

Tổng hợp các dự án Bất động sản ven sông Sài Gòn – HCM

Tháng 2 28, 2025

Tiện ích dự án MT Eastmark City có những gì?

Tháng 2 15, 2025

Mua chung cư Tầng 4 và sự thật bất ngờ ít người biết!

Tháng 2 28, 2025

Thông tin Dự án căn hộ Stella En Tropic Võ Văn Kiệt – Bình Tân

Tháng 2 28, 2025

Dự án Khu đô thị sinh thái Hòa Xuân – Đà Nẵng của Tập đoàn Sungroup

Tháng 2 28, 2025

Giới thiệu

Uland.vn cung cấp các tin tức, kiến thức và thông tin mới nhất về đầu tư bất động sản trong kỷ nguyên 4.0. Đưa ra các phân tích thị trường, cơ hội đầu tư và các chiến lược quản lý tài chính thông minh trong lĩnh vực bất động sản.

79king, mb66, 33win, ae888, 789win, 8kbet, hi88, jun88, u888, ee88, vin88, sv388, k8cc, s666, vin88, 23win, pg88, xin88, fun88, vin88, nhà cái uy tín, soi kèo nhà cái, yo88, typhu88, tài xỉu online, xocdia88, sanclub, vin777, kubet11, b52, 123b, hb88, az888, ku68, 888b, bet88, loto188, win55, xoso66, vb777, 12bet, 999bet, 123win, good88, keonhacai5, go789, kubet77, qh88, iwinclub, mksport, win456, 78win, topzo, 77ball, ab77, abc8, b52club, fo88, kubet77, i5bet, cado88, kingbet86, 33bet, azbet88, h3bet, pq88, ysb66, letou, ibet68, vx88, km1888b, rongho99, 99vina,

Liên hệ

  • Phone: 0905 678 123
  • Email: [email protected]
  • Địa chỉ: Số 10, Đường Phạm Ngọc Thạch, Phường 6, Quận 3, TP Hồ Chí Minh, Việt Nam
Copyright © 2025 uland.com.vn
Danh mục
  • Home
  • Tin tức
  • Nhà mẫu
  • Kiến thức